CONSTRUCCIÓN INDUSTRIALIZADA EN HORMIGÓN PREFABRICADO

Seleccione su idioma

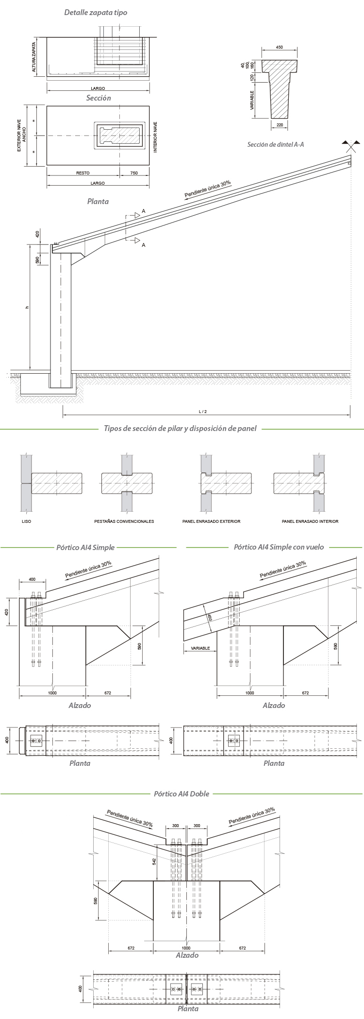
7.1.4. Pórticos agroindustriales AI / Detalles

Imprimir
7-1-4-porticos
Descripción

porticos agroindustriales AI serie4

porticos agroindustriales AI serie4

Comentarios

Aún no hay comentarios para este producto.
Image