CONSTRUCCIÓN INDUSTRIALIZADA EN HORMIGÓN PREFABRICADO

Seleccione su idioma

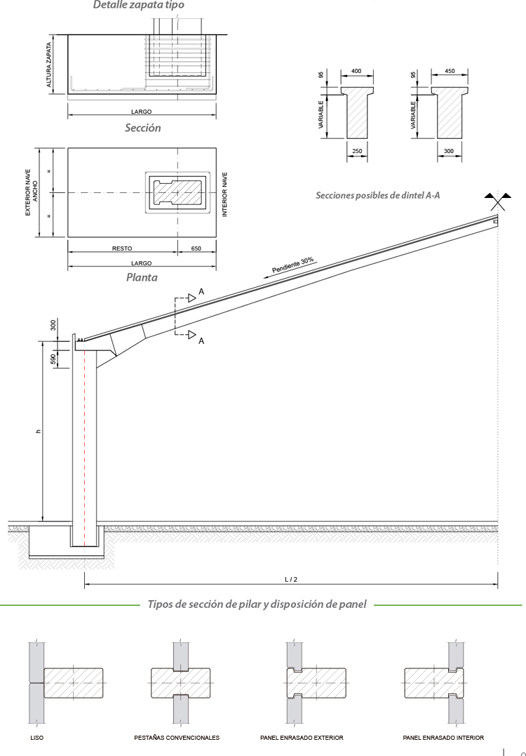
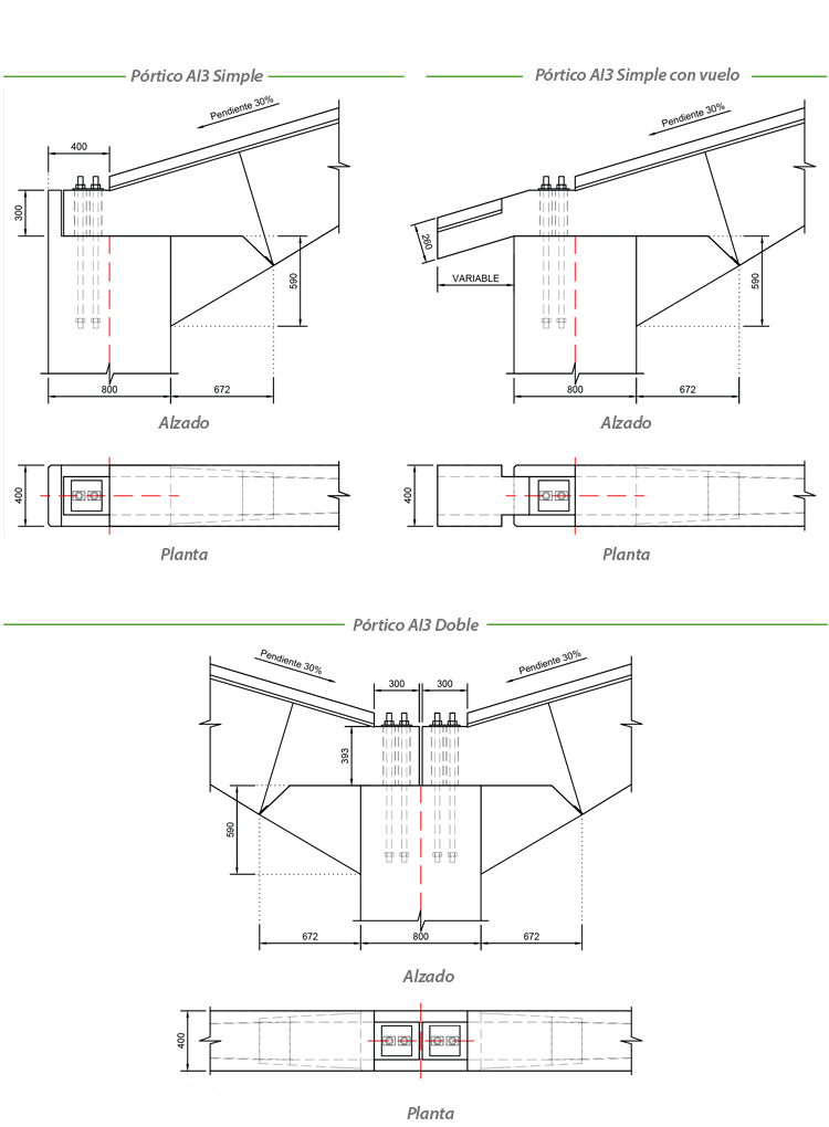
7.1.3. Pórticos agroindustriales AI

Imprimir
Descripción

porticos agroindustriales AI serie3

porticos agroindustriales AI serie3

Comentarios

Aún no hay comentarios para este producto.
Image